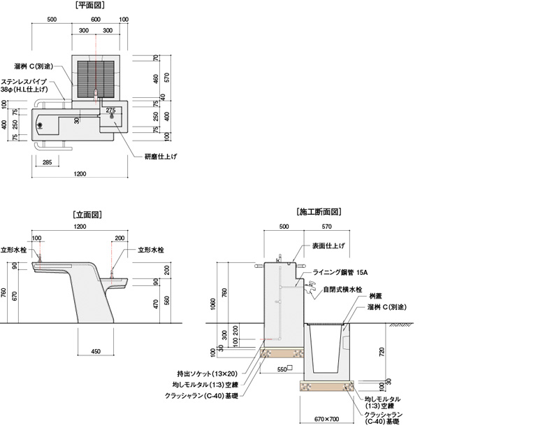
製品の施工断面図やスペック表等の資料をご覧いただけます。内容はCADファイルとしても取得いただけます。






※平板舗装をモルタルを用いる湿式工法で施工する場合はご相談ください。










エフロレッセンスとは、コンクリート中の可溶成分を含んだ溶液がコンクリート内部から表面に移動し、乾燥に伴って水分が蒸発することで、コンクリート表面に濃縮。これが空気中の炭酸ガスと統合することによって、コンクリート表面に沈着した『白色の物質』のことを言います。
エフロレッセンスの外観は白い花が咲いている様にも見えるので、『白華』や『白華現象』などとも呼ばれています。




エフロレッセンスの発生事例
エフロレッセンスは、コンクリートの練混ぜ水によって発生する一次エフロと、雨水や積雪後の雪解け水、および散水などにより外部からコンクリートに浸透した水によって発生する二次エフロに大別されます。
また、コンクリート表面におけるエフロレッセンスの形態は様々で、塊状に固化しているもの、繊維状の結晶が成長して綿状にふわふわしたもの、粉をふいた様に付着したもの、色ムラとなって生じるものなどがあり、何れもコンクリートの美観を損ないます。
エフロレッセンスの例
エフロレッセンスはセメント系材料の水和生成物のうち、最も溶解度が大きい水酸化カルシウム(Ca(OH)2)が細孔溶液中に溶出し、水分と共にコンクリート表面に運ばれ、乾燥して析出したものです。その後、炭酸化反応によって水酸化カルシウムが空気中の二酸化炭素(CO2)と反応して炭酸カルシウム(CaCO3)に変化します。したがって、エフロレッセンスの主成分は炭酸カルシウムと言われています。
1.雨水や積雪後の雪解け水などにより、コンクリートの表層部が浸水します。

2.コンクリートの表層部を移動したり滞留している水が、コンクリート内部に浸透します。
この水にコンクリート中の水酸化カルシウム等を溶解します。

3.可溶成分(水酸化カルシウム等)を含んだ水がコンクリート内部から表面に移動し、蒸発して乾燥します。その際に、この水に含まれた可溶成分が空気中の炭酸ガスと反応し、不溶性の炭酸カルシウムとなってコンクリート表面に析出します。

4.コンクリート表面に析出した炭酸カルシウムが乾いて固着し、白くなります。これをエフロレッセンスと言い、コンクリートの美観が損なわれます。

エフロレッセンスの発生によってコンクリートの品質が阻害されることはありません。
また、当該現場の環境条件等によって時間に差異はありますが、エフロレッセンスは2~3ヶ月で自然に消えて無くなることが広く知られています。この理由は、以下の様に考えられています。
打設直後のコンクリートのpHは12以上の強アルカリです。これに対して、エフロレッセンスの主成分である炭酸カルシウムのpHは8.5~10程度です。

エフロレッセンスのうち、一次エフロは可溶成分であるために水で簡単に洗い流すことが出来ますが、二次エフロは難溶性の炭酸カルシウムが主成分であることから、塩酸などの酸で洗わなければ簡単に除去することは出来ません。
前述した様に、エフロレッセンスは2~3ヶ月で自然に消えて無くなることが多いため、可能な限り経過を観察することが望ましいと言えますが、どうしても除去する必要がある場合には塩酸での洗浄が効果的です。
塩酸による洗浄の手順は右記に示すとおりですが、洗浄は高温の晴天時に行なうのが効果的です。例えば、冬季の低温時に洗浄しても、エフロレッセンスが再度発生する場合がありますのでご注意下さい。

現状のコンクリート技術では、エフロレッセンスの発生を完全に防止するのは困難なことから、前述した各種の方法を組み合わせてエフロレッセンスの発生を出来るだけ少なくすることが肝要と言えます。
【参考文献】
ブリック(ウマ)
フィッシュボーン90°(アジロ)
パーケット(バスケット)
イモ(通し目地)
ハーフパーケット
ブリック組合せ
2種サイズ組合せ
2種サイズ組合せ
2種サイズ組合せ
AND(2種サイズ組合せ)
フィッシュボーン90°(アジロ)
異形貼(3種サイズ組合せ)
異形貼(3種サイズ組合せ)
異形貼(2種サイズ組合せ)
2種サイズ組合せ
イモ(通し目地)
ブリック
ブリック
オーシャンスリット ブリック(ウマ)
オーシャンスリット
オーシャンスリット ブリック
オーシャンスリット イモ(通し目地)
オーシャンスリット イモ
オーシャンスリット ブリック
アートスルー
アートスルー イモ(通し目地)
アートスルー ブリック
C05:C06=1:1
C04:C05:C06=1:1:1
C01:C03:C04=1:1:1
C11:C12=1:1
WH:C11:C12=1:1:1
C03:C11:C12=1:1:1
C04:C05:C11=1:1:1
C02:C11:C12=1:1:1
C01:C03:C11=1:1:1
C02:C03=1:1
C01:C02:C03=3:2:1
C01:C02:C04=1:1:1
C01:C11=1:1
WH:C11=1:1
C01:C11:C12=1:1:1
C01:C04:C11=1:1:1
WH:C04:C11=1:1:1
C02:C05:C11=1:1:1
C05:C06=1:1
C04:C05:C06=1:1:1
C01:C03:C04=1:1:1
C11:C12=1:1
WH:C11:C12=1:1:1
C03:C11:C12=1:1:1
C04:C05:C11=1:1:1
C02:C11:C12=1:1:1
C01:C03:C11=1:1:1
C02:C03=1:1
C01:C02:C03=3:2:1
C01:C02:C04=1:1:1
C01:C11=1:1
WH:C11=1:1
C01:C11:C12=1:1:1
C01:C04:C11=1:1:1
WH:C04:C11=1:1:1
C02:C05:C11=1:1:1

A.施工位置、高さに合わせて予め墨出しを行ないます(元請業者にてお願いします)。
B.下地には空練りモルタル(1:3)を使用します。
C.目地部(6mm)にはモルタル(1:2)を充填します。
D.階段ブロックを安定して施工できるようセメントペースト(のろ)の敷設をおすすめします。
E.基礎部にはコンクリート(t=100)及びクラッシャラン(t=100程度)をお願いします(元請業者にておねがいします)。
*.施工高さ(一段高さ)はのみこみの調整で対応できます(140〜165mm)。